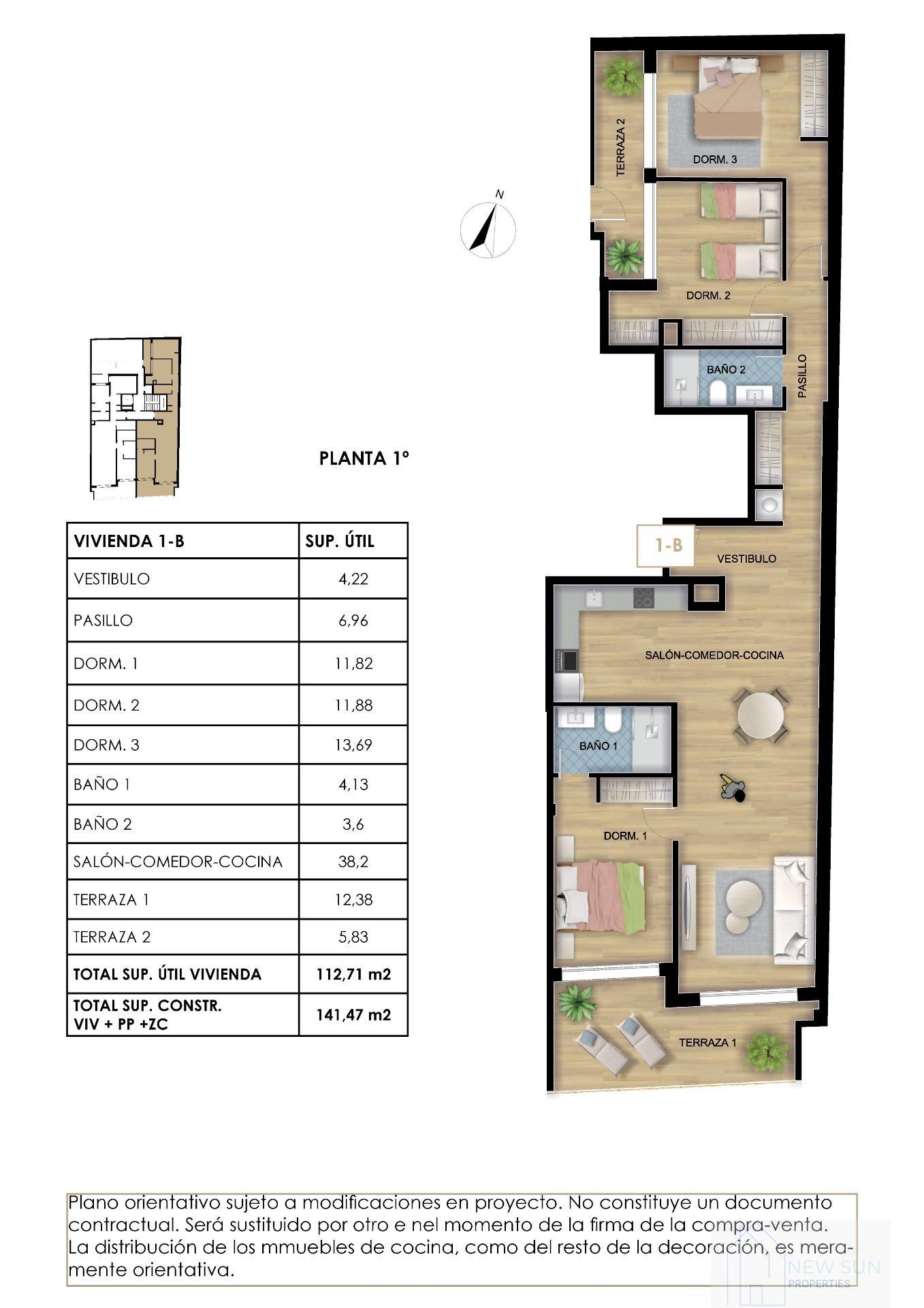
Apartamento en Centro, con 141 m² construidos, 110 m² útiles, 3 dormitorios, 2 baños, nuevo, planta 1, 1 armarios, 18 m² de terraza, ascensor, 2024, piscina comunitaria, 1 plantas del edificio, calefacción individual, aire acondicionado frío/calor, acceso adaptado movilidad reducida
APARTAMENTOS DE OBRA NUEVA EN TORREVIEJA CERCA DE LA PLAYAPromoción de obra nueva de 8 apartamentos y áticos de lujo en Torrevieja situados a tan solo 150 metros de la playa.Las modernas viviendas disponen de 3 dormitorios, 3 baños, cocina americana con el salón, suelos radiantes en los baños, amplias terrazas, armarios y cocina totalmente equipados. Áticos con solarium privado.Piscina comunitaria y sauna de acabado, solarium en la azotea con barbacoa. Una plaza de aparcamiento subterráneo opciones a un costo adicional.Fecha de finalización a finales de 2025Torrevieja es una ciudad española en la provincia de Alicante, en la Costa Blanca.Es conocida por su clima típicamente mediterráneo y su costa. Cuenta con paseos marítimos con complejos turísticos a lo largo de sus playas de arena.El pequeño Museo del Mar y de la Sal alberga exposiciones sobre la historia pesquera y salinera de la ciudad.En el interior, el Parque Natural de las Lagunas de La Mata-Torrevieja cuenta con senderos y dos lagunas saladas, una rosa y otra verde.El aeropuerto de Alicante está a 40 minutos y el de Murcia, a 1 hora.
